Wohnen auf höchstem Niveau – Stilvolle Erdgeschosswohnung mit Garten in Lindau-Aeschach





















Beschreibung
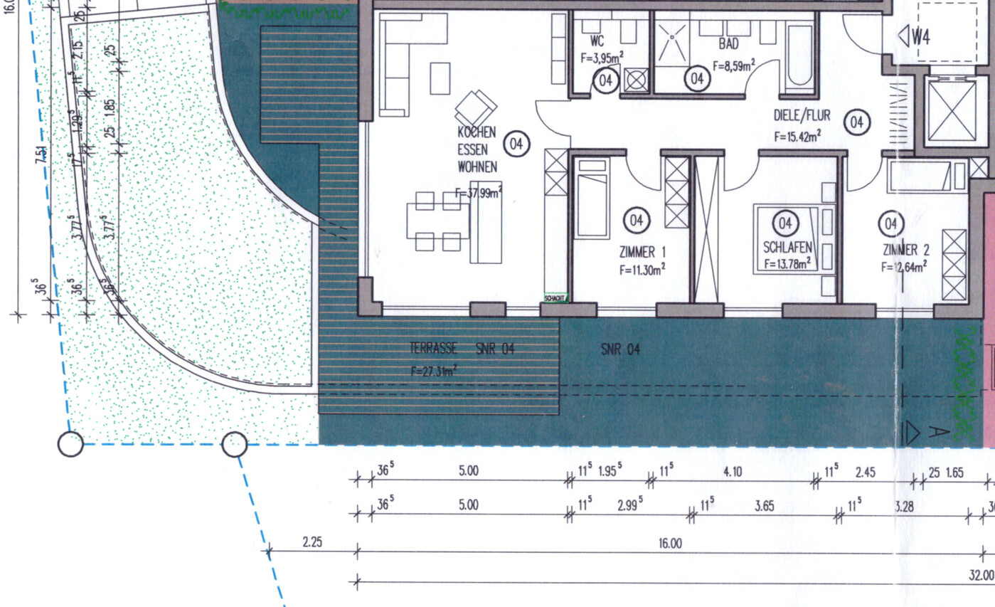
Zum Kauf steht eine hochwertige Erdgeschosswohnung in einem neuwertigen Bau aus dem Jahr 2018, die höchsten Wohnansprüchen gerecht wird.Mit ca. 118 m² Wohnfläche auf einer Ebene und eigenem Garten bietet sie komfortables Wohnen in bester Lage. Die Wohnung überzeugt durch ihre gehobene Ausstattung und ihren sehr guten Zustand.
Aufgeteilt in 4 Zimmer – darunter 3 Schlafzimmer – ist sie ideal für Paare oder Familien mit Platzbedarf. Ein stilvolles Badezimmer, ein Gäste-WC sowie die großzügige Terrasse mit Garten sorgen für hohen Wohnkomfort und entspannte Stunden im Freien.
Die ruhig gelegene, aber zentral positionierte Wohnung befindet sich in zweiter Reihe im beliebten Lindauer Stadtteil Aeschach. Einkaufsmöglichkeiten, Schulen und öffentliche Verkehrsmittel sind schnell erreichbar.
Die Immobilie ist kurzfristig bezugsfrei und bietet mit einem Kellerraum zusätzlichen Stauraum. Ein Tiefgaragenplatz muss dazu erworben werden; die Vorbereitungen für eine Wallbox sind bereits getroffen.
Ein attraktives Zuhause mit Stil und Komfort – in einer der begehrtesten Wohnlagen Lindaus.
Lage
Diese charmante Erdgeschosswohnung überzeugt durch ihre zentrale und familienfreundliche Lage. Nur rund 1,3 Kilometer vom Stadtzentrum entfernt, genießen Sie eine perfekte Balance aus urbanem Leben und ruhigem Wohnkomfort. Einkaufsmöglichkeiten, Restaurants und kulturelle Angebote sind schnell erreichbar.Für Familien ideal: Eine Grundschule liegt nur etwa 170 Meter entfernt, eine Realschule rund 240 Meter und ein Gymnasium weniger als 500 Meter. Auch Kindergarten und weitere Betreuungsangebote befinden sich in unmittelbarer Nähe.
Die Verkehrsanbindung ist ausgezeichnet. Der Lindauer ZUP für den ÖPNV ist quasi direkt ums Eck! Die nächste Autobahn erreichen Sie in etwa 3 Kilometern, was die Lage auch für Pendler attraktiv macht.
Zentrumsnah, ruhig und familienfreundlich – ein idealer Ort zum Wohlfühlen.
Ausstattung
- Garten mit natürlicher Beschattung- Moderne Küche
- Barrierefrei
- Kabel TV & Kabel Internet mit bis 1000 Mbits/s
- Fußbodenheizung in der gesamten Wohnung
- Terrasse mit eigenem Gartenbereich
- Gäste WC
- Unterkellert
- Zentralheizung
- Tiefgaragenplatz (25.000€) mit vorbereitetem Wallbox-Anschluss
Sonstige Angaben
Wir freuen uns, Ihnen eine außergewöhnliche Immobilie vorstellen zu dürfen, die durch moderne Bauweise und energieeffiziente Merkmale besticht. Die im Jahr 2018 errichtete Liegenschaft stellt sich als zukunftsorientiert und umweltbewusst dar.Die Energieeffizienz des Objekts wird durch einen Verbrauchsausweis belegt, der die Nachhaltigkeit und den ökologischen Anspruch der Immobilie unterstreicht. Der wesentliche Energieträger ist Gas, was eine zuverlässige und wirtschaftliche Versorgung gewährleistet.
Diese Immobilie bietet nicht nur zeitgemäßes Wohnen, sondern auch eine Investition in die Zukunft. Kontaktieren Sie uns für weitere Informationen oder eine Besichtigung und erleben Sie selbst den Komfort und die Qualität, die dieses Objekt zu bieten hat.